Serratura elettrica Iseo Performa entrata 30 frontale piatto art. 7295143028
Serratura elettrica Iseo Performa entrata 30 frontale piatto art. 7295143028
Serratura elettrica Iseo Performa entrata 30 frontale piatto art. 7295143028
Serratura elettrica Iseo Performa entrata 30 frontale piatto art. 7295143028

Serratura elettrica Iseo Performa entrata 30 frontale piatto art. 7295143028

Disponibilità limitata

87,67 €+ iva

106,96 € IVA inclusa
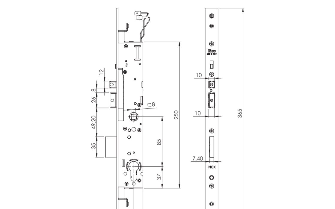
Elettroserratura da infilare Performa entrata 30 per montanti, interasse 85 mm, frontale piatto 365 × 22 × 3 mm, in acciaio inox, cilindro a profilo europeo

 

Serratura elettrica Iseo Performa entrata 30 frontale piatto art. 7295143028


La serratura elettrica Iseo Performa entrata 30 frontale piatto art. 7295143028 è un’elettro serratura da infilare per montanti a chiusura triplice, dotata di catenaccio traslante per una maggiore sicurezza. Il frontale è realizzato in acciaio inox con dimensioni di 365 x 22 x 3 mm, mentre l’entrata misura 30 mm e l’interasse è di 85 mm con mandata di 20 mm. È alimentata a 12 V AC/DC, con un assorbimento di 860 mA e potenza di 10 W, e predisposta per l’installazione di un cilindro a profilo europeo. Il quadro maniglia è da 8 mm e scrocco e pistone sono regolabili di 5 mm. Tra le caratteristiche aggiuntive figurano il dispositivo anti sfasatura e l’aggancio aste a vite, garantendo un’installazione sicura e precisa.


DISEGNO TECNICO 


DATI TECNICI

MODELLO Serratura elettrica Iseo Performa entrata 30 frontale piatto art. 7295143028
TIPO DI SERRATURA Elettro serratura da infilare a chiusura triplice con catenaccio traslante
ENTRATA 30 mm
FRONTALE Piatto in acciaio inox, dimensioni 365 x 22 x 3 mm
ALIMENTAZIONE 12 V AC/DC, 860 mA, 10 W
INTERASSE 85 mm
MANDATA 20 mm
PREDISPOSIZIONE CILINDRO Cilindro a profilo europeo, quadro maniglia 8 mm

CARATTERISTICHE TECNICHE

✅  Tipo di serratura: elettro serratura da infilare a chiusura triplice

✅  Entrata: 30 mm

✅  Frontale: acciaio inox, dimensioni 365 x 22 x 3 mm

✅  Alimentazione: 12 V AC/DC, 860 mA, 10 W

✅  Interasse: 85 mm

✅  Mandata: 20 mm

✅  Predisposizione cilindro: cilindro a profilo europeo, quadro maniglia 8 mm


BENEFICI

La serratura elettrica Iseo Performa entrata 30 frontale piatto art. 7295143028 offre numerosi benefici, garantendo un’elevata sicurezza grazie alla chiusura triplice, una regolazione semplice e precisa, una lunga durata assicurata dal frontale in acciaio inox e una maggiore affidabilità grazie al dispositivo anti sfasatura e all’aggancio aste a vite:

✔️  Elevata sicurezza: grazie alla chiusura triplice e al catenaccio traslante

✔️  Installazione semplice e regolabile: con scrocco e pistone regolabili di 5 mm

✔️  Resistenza e durata garantite: dal frontale in acciaio inox

✔️  Maggiore precisione e affidabilità: grazie al dispositivo anti sfasatura e all’aggancio aste a vite

7295143028
8020614341681
Commenti (0)
Ancora nessuna recensione da parte degli utenti.
Prodotto aggiunto alla lista dei desideri
Prodotti aggiunti alla comparazione